
导 航
发布时间:2024-01-23点击数:

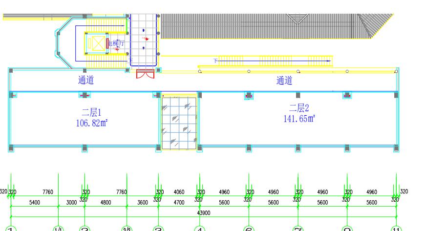
1、 标的名称:西关美食文化体验馆二层自编1号、二层自编2号招租
2、 所在地址:广州市荔湾区龙津西路98、100、102、104、106、108号西关美食文化体验馆。
3、 标的所在区域:广州荔湾区
4、 出租类别:房产
5、 出租用途:商业
6、 出租面积:
二层自编1号:106.82 m²;二层自编2号:141.65 m²。
备注:实用面积以双方现场实测为准。
7、 租赁期限/租期到期时间:5年
8、 免租期:60天。
9、 标的使用情况:空置
10、 特色:繁华商圈、一线街铺、交通便利
11、 挂牌价格:面议
12、 价格说明:面议,协商待定
13、 出租条件:优先选择从事非遗文化相关的企业。(其他类可协商面议)
14、 重大事项及其他披露内容:
1)物业交付标准:以物业现状交付;
2)竞价保证金:不设;
3)物业管理:物业承租人须与广州酒家集团股份有限公司的下属经营公司(广州西关美食体验物业经营管理有限公司)签订合同;
4)承租人自行使用承租物业,依法经营,未经我司同意,不得整体转租或分租。
15、 承租方资格条件:
1)意向承租方必须为遵守中华人民共和国法律、法规、无重大违法、违纪行为,有效存续的法人或其他组织;
2)意向承租方须具有良好的信誉,重合同守信誉,守法经营,依法纳税,无重大消防、安全事故处罚记录;
3)意向承租方的承租行为必须符合国家现行法律、法规和政策规定。
16、 资产来源:国有企业房屋出租
17、 附件材料:无
18、 联系人:冯先生13922268024、刘小姐 15920451244
19、出租图片参考平面示意图:


20、报名信息详见广州公有物业出租平台链接如下:
1)二层自编1号:
http://gzfc.gemas.com.cn/fang/detail.shtml?2ff5c0af245e4b7592f14a50990fb9eb
2)二层自编2号:
http://gzfc.gemas.com.cn/fang/detail.shtml?0da36786ba2644eb91c12500c44b4c5b