
发布时间:2021-12-13点击数:

1、 标的名称:西关生活体验馆首层自编1A号、首层自编2号、首层自编3号、首层自编3A号、首层自编5号、首层自编6号,二层自编1号、二层自编2号招租
2、 所在地址:广州市荔湾区龙津西路98、100、102、104、106、108号西关美食文化博物馆1-3层。
3、 标的所在区域:广州荔湾区
4、 出租类别:房产
5、 出租用途:商业
6、 出租面积:
首层自编1A号:44.18㎡;首层自编2号:51.65㎡;首层自编3号:60.23㎡;首层自编3A号:34.33m²;首层自编5号:34.83m²;首层自编6号:358.66m²(免租金提供负一层自编1号厨房(约200㎡)配套使用)、二层自编1号:99.65m²;二层自编2号:131.25m²。
备注:实用面积以双方现场实测为准。
7、 租赁期限/租期到期时间:6年
8、 免租期:首层自编1A号~5号商铺:30天免租期;首层自编6号、二层自编1号、二层自编2号商铺:45天免租期。
9、 标的使用情况:空置
10、 特色:繁华商圈、一线街铺、交通便利
11、 挂牌价格:面议
12、 价格说明:面议,协商待定
13、 出租条件:优先选择从事非遗文化的企业或个体工商户。(其他类可协商面议)
14、 重大事项及其他披露内容:
1)物业交付标准:以物业现状交付;
2)竞价保证金:不设;
3) 物业管理:物业承租人须与广州酒家集团股份有限公司的下属经营公司签订物管合同;(具体内容待确认)
4)承租人自行使用承租物业,依法经营,未经我司同意,不得整体转租或分租。
15、 承租方资格条件:
1)意向承租方必须为遵守中华人民共和国法律、法规、无重大违法、违纪行为,有效存续的法人或其他组织;
2)意向承租方须具有良好的信誉,重合同守信誉,守法经营,依法纳税,无重大消防、安全事故处罚记录;
3)意向承租方的承租行为必须符合国家现行法律、法规和政策规定。
16、 资产来源:国有企业房屋出租
17、 附件材料:无
18、 联系人:
出租方联系人/联系方式: 黄先生15818810452、刘小姐 15920451244
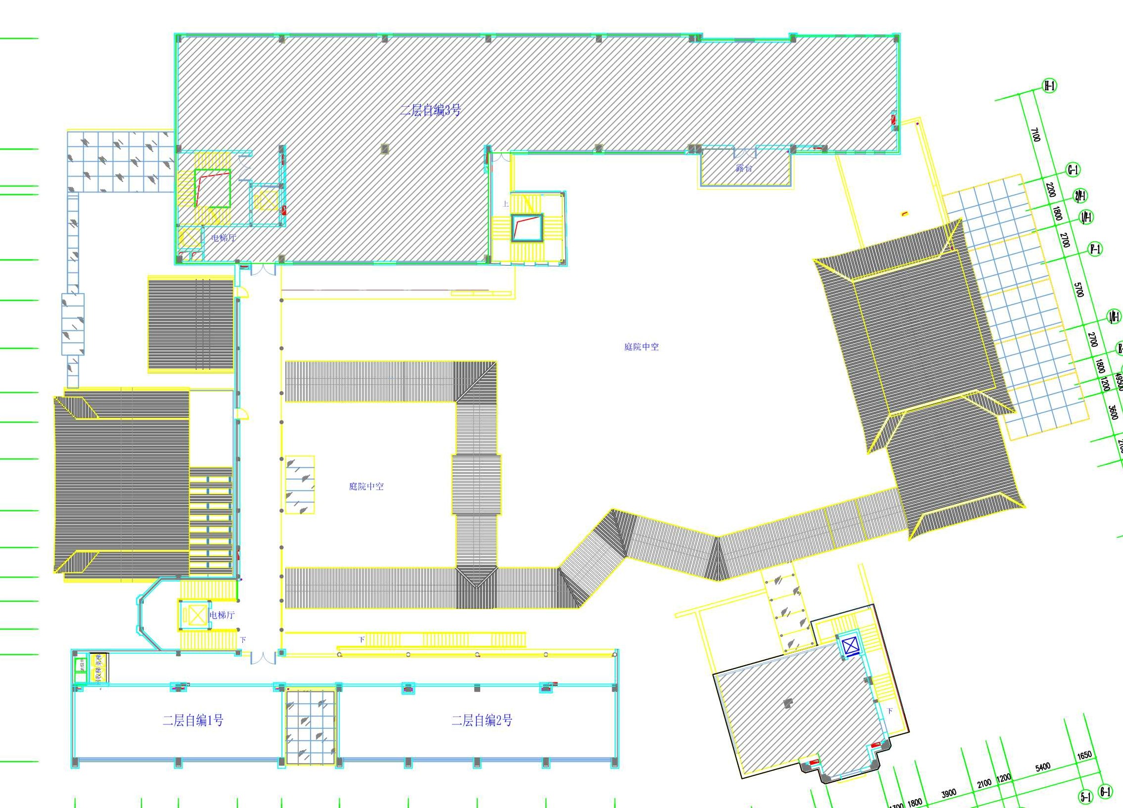
19、出租图片参考平面示意图:

首层平面图

二层平面图
20、报名信息详见广州公有物业出租平台链接如下:
1) 首层自编1A号:
http://gzfc.gemas.com.cn/fang/detail.shtml?05ff9eb7fbba430b927b68104a9ef792
2) 首层自编2号:
http://gzfc.gemas.com.cn/fang/detail.shtml?8302f9f5ca9946a58374e9ae6a06a16e
3) 首层自编3号:
http://gzfc.gemas.com.cn/fang/detail.shtml?b68b0f689cda4d7da98a4df148fdccbc
4) 首层自编3A号:
http://gzfc.gemas.com.cn/fang/detail.shtml?d3322f85a5ca498db641db105e325d6d
5) 首层自编5号
http://gzfc.gemas.com.cn/fang/detail.shtml?076f019c168342b0995f229ea5e19f61
6) 首层自编6号
http://gzfc.gemas.com.cn/fang/detail.shtml?8e7ffd740da94249a6b3f87f8db931e3
7) 二层自编1号
http://gzfc.gemas.com.cn/fang/detail.shtml?8e8caae039f245ccac1db74e9735d956
8) 二层自编2号
http://gzfc.gemas.com.cn/fang/detail.shtml?57a0ab7be2f54007bc15bbe5d2536607